Проект дома Инновация
Проект небольшого дома из газоблока "Инновация" является отличным вариантом для небольшой семьи. Особенностями строительства такого дома являются:
- Использование инноваций в возведении жилья;
- Покупка качественных материалов;
- Работа высококвалифицированных специалистов.
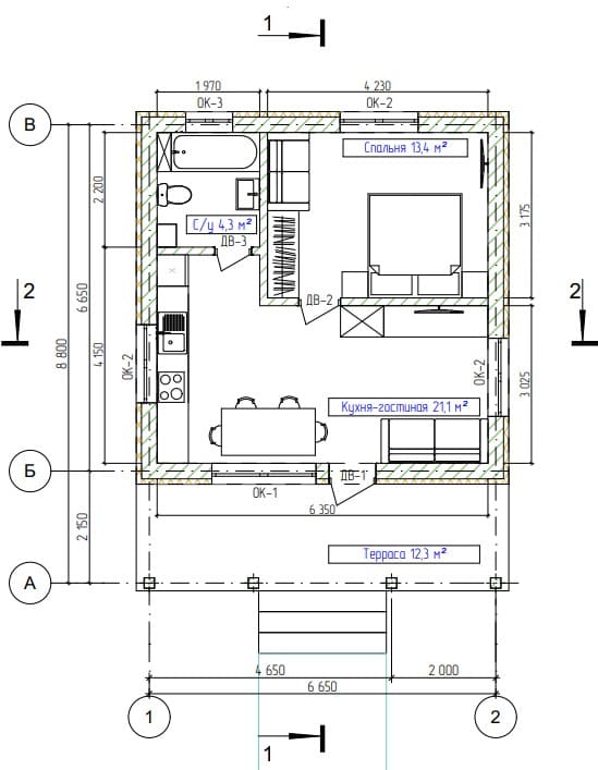
Площадь постройки 38,8 м2, а его габариты 8,8х6,65.
Заказ на проектирование и возведения дома из газоблока «Инновация» в нашей компании даёт следующие достоинства: высокое качество на любых этапах работ, можно создать дом мечты по своим чертежам. К тому же цена дома из газоблока экономически обоснованна. Обращайтесь в нашу компанию, мы готовы воплотить в жизнь любые ваши идеи.
Это типовой проект. При необходимости наши архитекторы разработают индивидуальны проект под Вас или переделают существующий.
Комплектация и цены
Стандартная цена
50 000 ₽
Проектирование + АР, 3Д модель + КР от
50 000 ₽
от 151 до 200 кв.м.
80 000 ₽
Оставить заявку
Характеристики
Общая площадь
38м²
Жилых комнат
2
Этажность
1
Габариты
6х8
Материал
Газобетон
