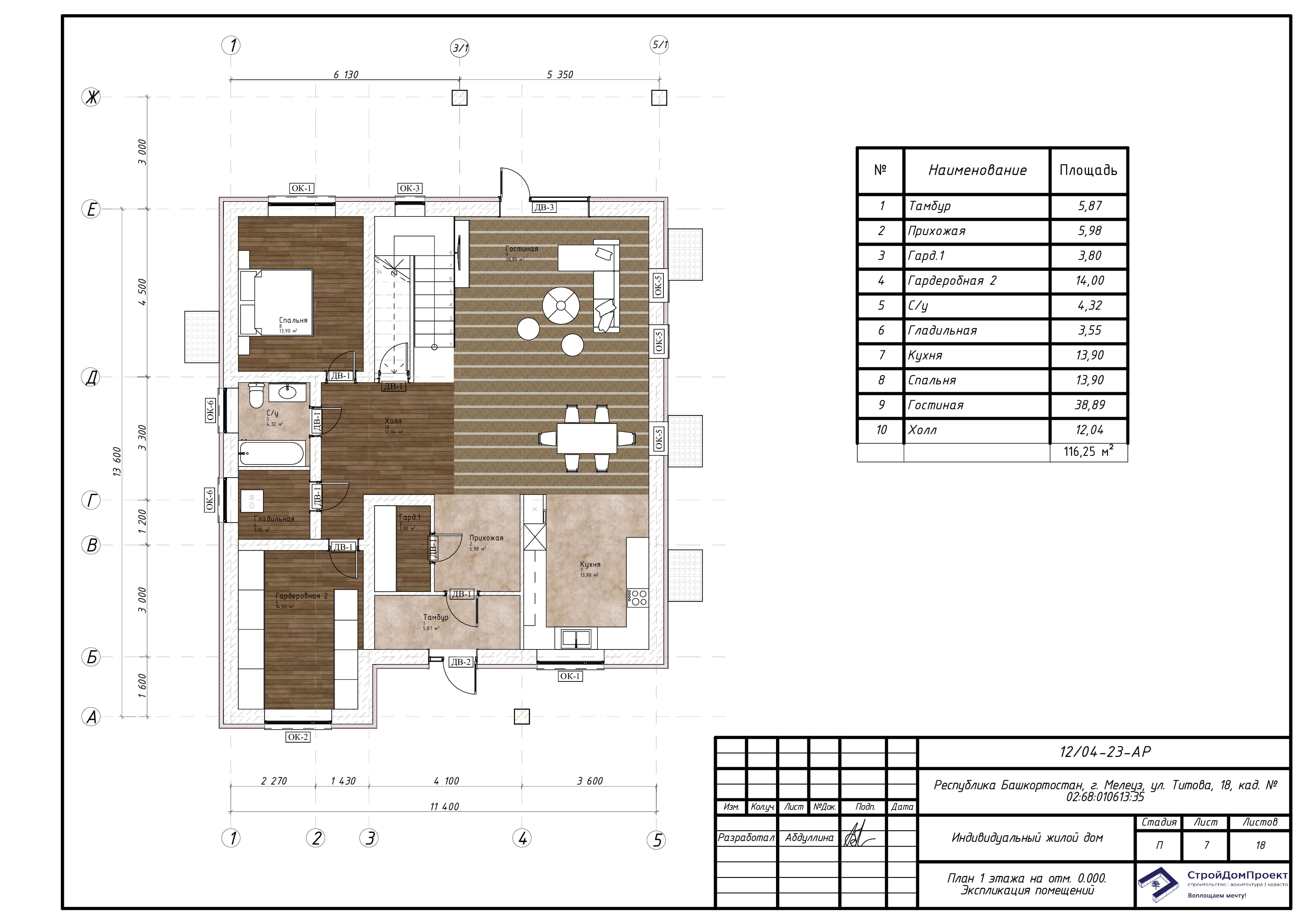
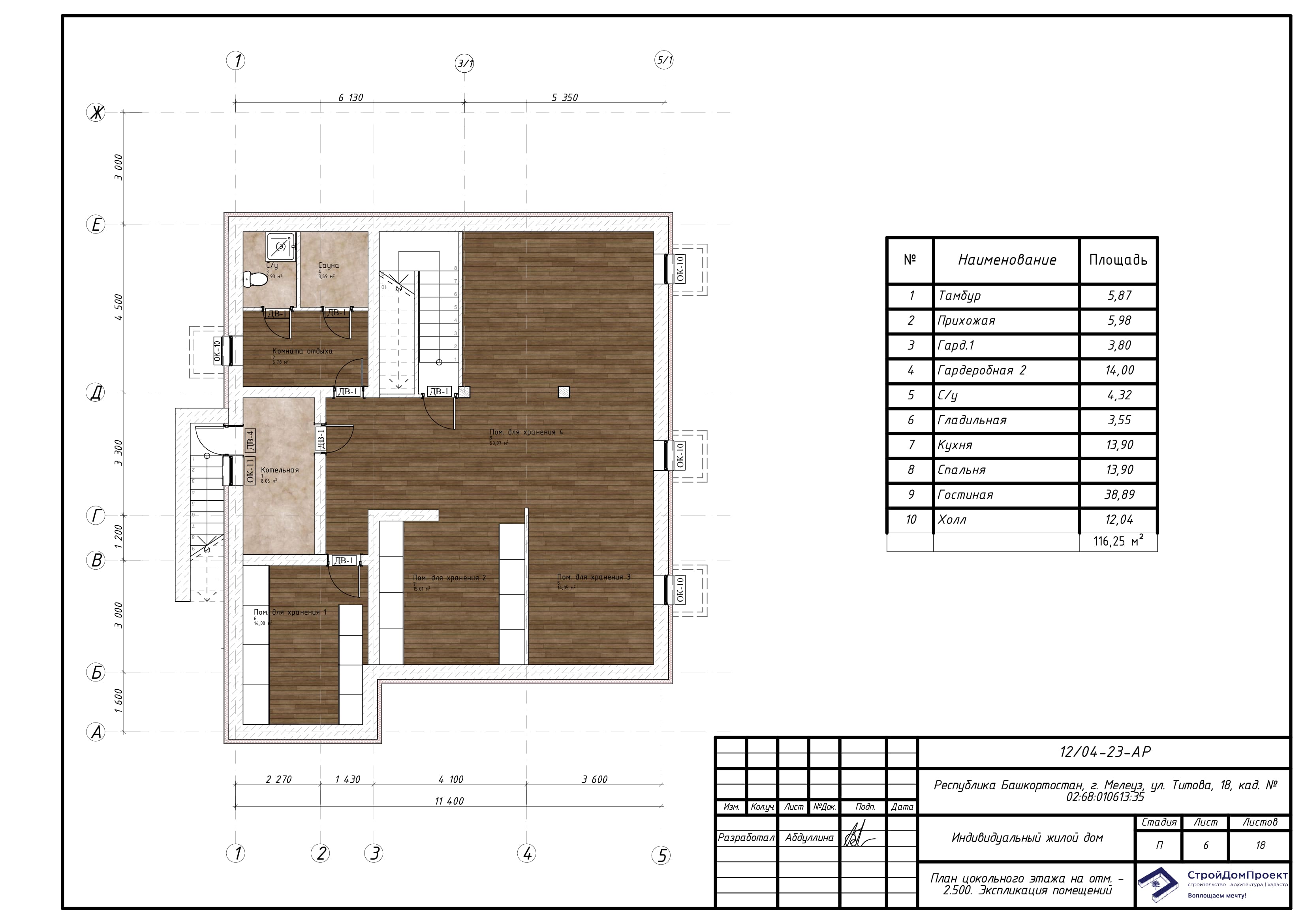
Проект дома Мелеуз
Компания СтройДомПроект предлагает бесплатный проект двухэтажного дома из газобетона с цоколкольным этажом "Мелеуз". Огромный дом общей площадью 356 м2 и множеством вспомогательных комнат не оставит никого равнодушным.
Это типовой проект. При необходимости наши архитекторы разработают индивидуальны проект под Вас или переделают существующий.
Комплектация и цены
Стандартная цена
50 000 ₽
Проектирование + АР, 3Д модель + КР от
50 000 ₽
от 151 до 200 кв.м.
80 000 ₽
Оставить заявку
Характеристики
Общая площадь
356м²
Жилых комнат
4
Этажность
2
Габариты
11х13
Материал
Газобетон

.jpg)
