Проект дома "Зинино"
Проект дома с мансардой из керамзитоблока "Зинино" является отличным вариантом семейного жилья. Особенностями строительства такого дома являются:
- Использование инноваций в возведении жилья;
- Покупка качественных материалов;
- Работа высококвалифицированных специалистов.
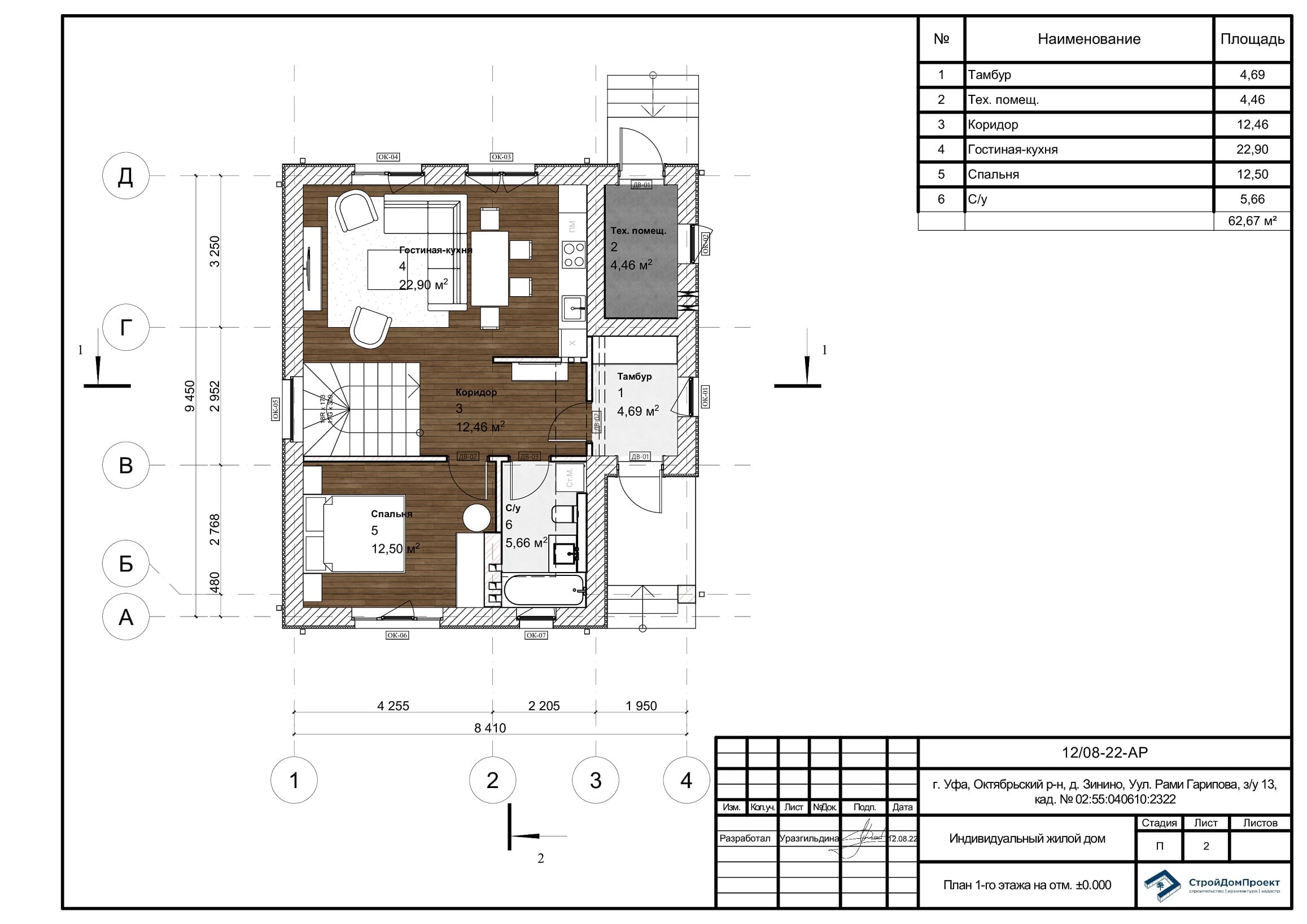
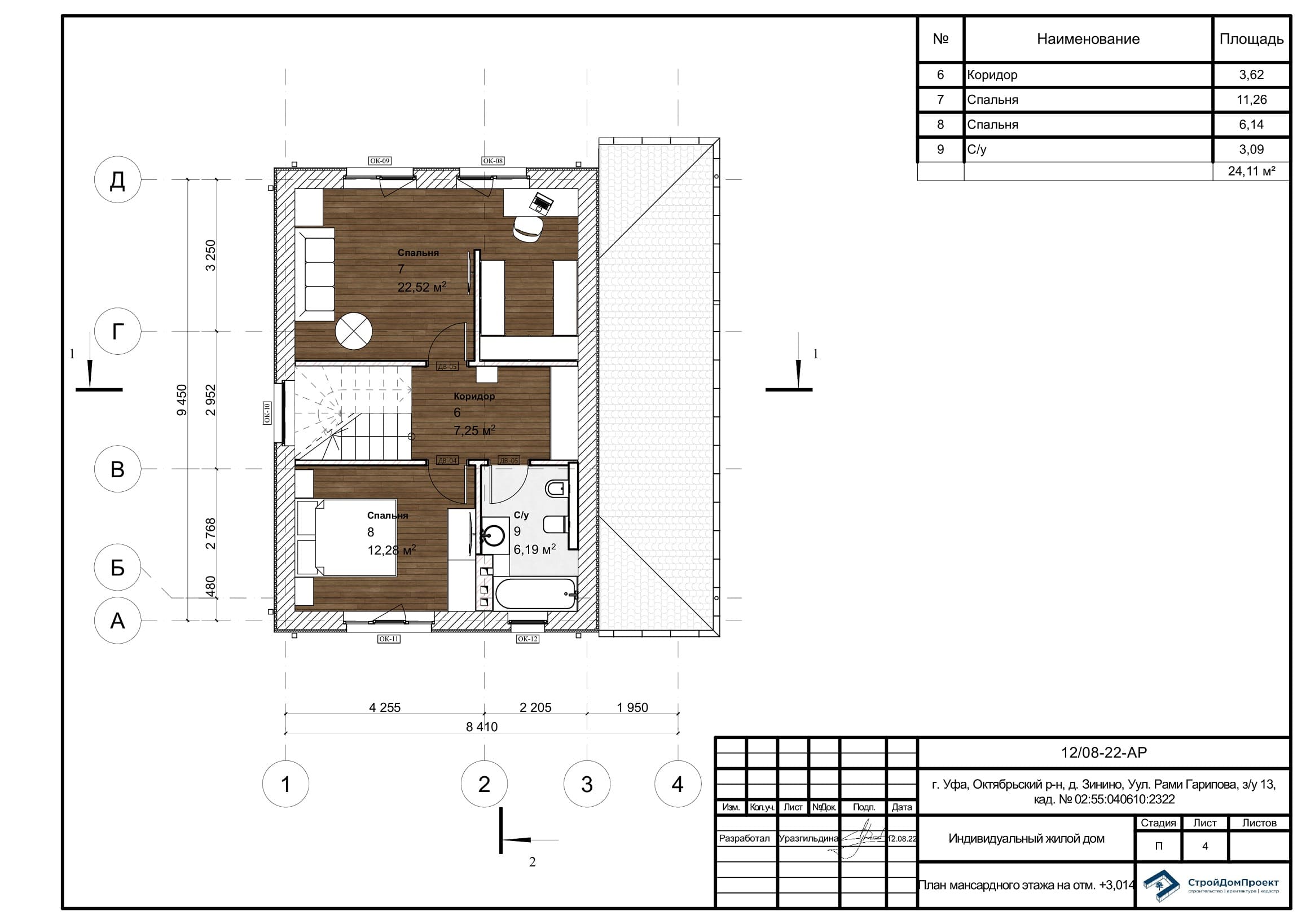
Общая площадь: 123 м2
Заказ на проектирование и возведения дома из газобетона «Зинино» в нашей компании даёт следующие достоинства: высокое качество на любых этапах работ, можно создать дом мечты по своим чертежам. К тому же цена дома из газобетона экономически обоснована. Обращайтесь в нашу компанию, мы готовы воплотить в жизнь любые ваши идеи.
Это типовой проект. При необходимости наши архитекторы разработают индивидуальны проект под Вас или переделают существующий.
Комплектация и цены
Стандартная цена
50 000 ₽
Проектирование + АР, 3Д модель + КР от
50 000 ₽
от 151 до 200 кв.м.
80 000 ₽
Оставить заявку
Характеристики
Общая площадь
123м²
Жилых комнат
3
Этажность
2
Габариты
8х9
Материал
Керамзитоблок

