Проект индивидуального жилого дома
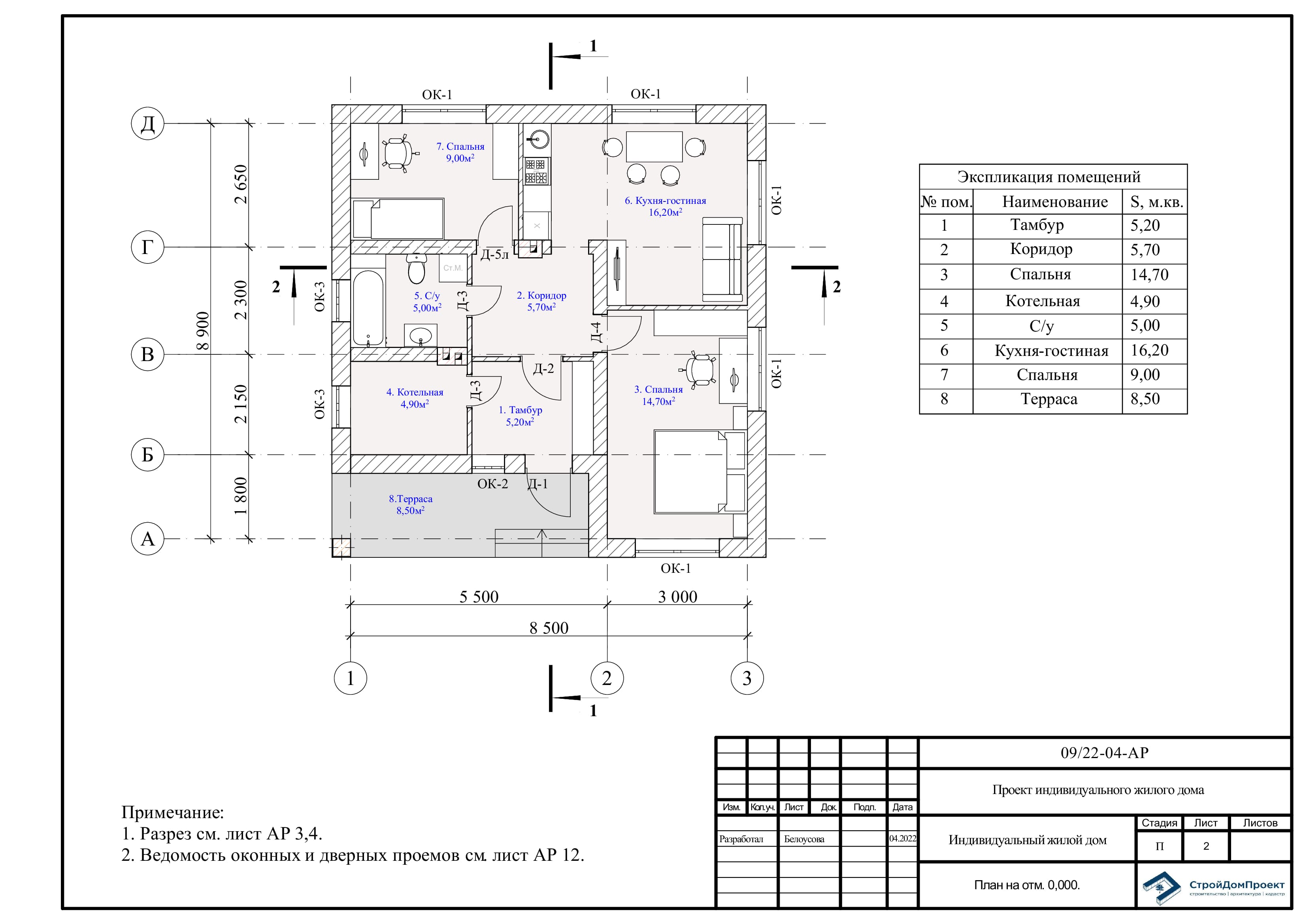
Бесплатный проект небольшого уютного дома из 2 спален и просторной кухни-гостиной площадью 90 м2.
Это типовой проект. При необходимости наши архитекторы разработают индивидуальны проект под Вас или переделают существующий.
Закажите проект дома из газобетона в компании "СтройДомПроект" и получите дом своей мечты.
Комплектация и цены
Стандартная цена
50 000 ₽
Проектирование + АР, 3Д модель + КР от
50 000 ₽
от 151 до 200 кв.м.
80 000 ₽
Оставить заявку
Характеристики
Общая площадь
90м²
Жилых комнат
3
Этажность
1
Габариты
8,5х8,9
Материал
Газобетон
