Проект дома Уфа
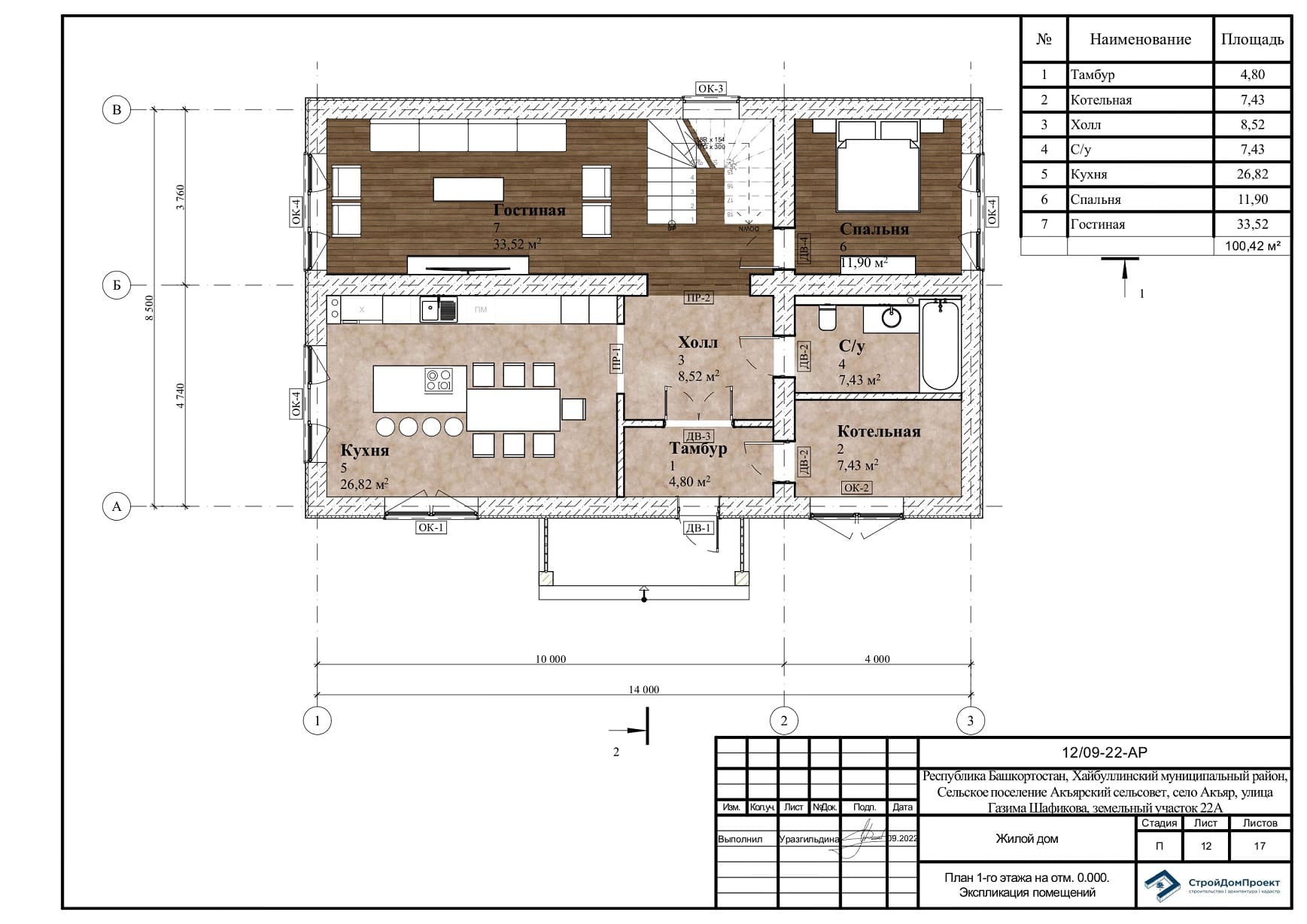
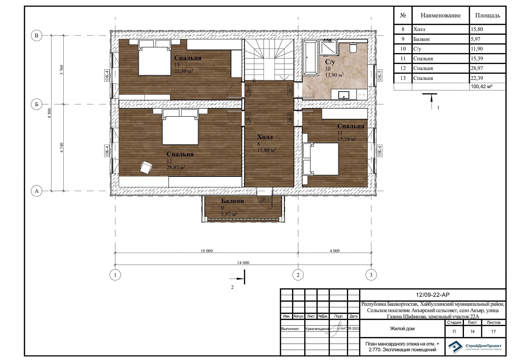
Проект дома из газобетона "Уфа". Превратите свои мечты в реальность. Этот проект дома, площадью 200 квадратных метров, с балконом, 4 спальнями и просторной гостиной, предлагает комфорт и простор для всей семьи. Строительная компания "СтройДомПроект" предоставляет качественные проекты по доступной цене. Инвестируйте в свой комфорт и безопасность с нами!
Комплектация и цены
Стандартная цена
50 000 ₽
Проектирование + АР, 3Д модель + КР от
50 000 ₽
от 151 до 200 кв.м.
80 000 ₽
Оставить заявку
Характеристики
Общая площадь
200м²
Жилых комнат
5
Этажность
2
Габариты
8х14
Материал
Газобетон

.jpg)